ライオンズマンション明石東二見 中古マンション 3階(売買 中古マンション) | 明石市二見町東二見 | 加古川市周辺の不動産情報はヤマダ不動産 加古川本店へ!一戸建て、マンションなど取扱い物件多数!

ライオンズマンション明石東二見 中古マンション 3階 | 明石市二見町東二見の不動産物件

【中古マンション】
価格 1,090万円 (税込)
山陽電気鉄道本線 東二見駅 徒歩9分
スマホ表示
物件コード:113171
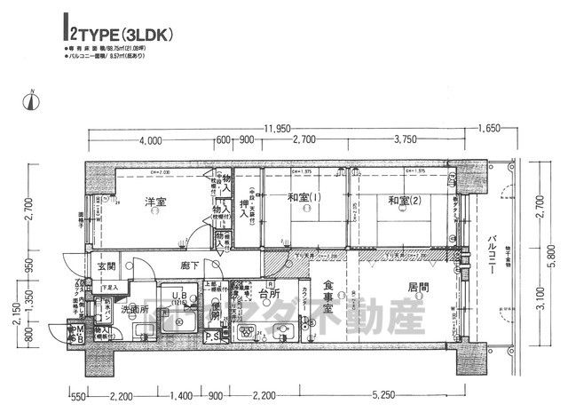
所在地 管理費 専有面積
バルコニー面積
間取り
所在階
築年月
兵庫県明石市二見町東二見 7,900円 69.75m2
9.57m2
3LDK
3階
1991/02

物件基本情報

▲室内美麗
▲3LDK
物件種目 中古マンション
物件名称 ライオンズマンション明石東二見 中古マンション
所在地 兵庫県明石市二見町東二見
交通
山陽電気鉄道本線 東二見駅 徒歩9分
山陽電気鉄道本線 西二見駅 徒歩12分
修繕積立金 8,510円
所在階/階数 3階 / 11階建
総戸数 136戸
建物構造 鉄筋コンクリート造
駐車場 空無
学校 明石市立二見西小学校 / 明石市立二見中学校
設備・条件
  • ガス:都市ガス
  • 汚水:公共下水
  • 水道:公営水道
  • エレベーター
  • TVドアホン
  • 浴室乾燥機
  • ペット不可
  • 室内洗濯機置場
  • システムキッチン
  • バルコニー
  • バス・トイレ別
ヤマダ不動産 加古川本店
Tel079-457-3355
お気軽にお問い合わせください。

画像・写真

周辺地図

地図を表示中...
ストリートビュー未対応エリアです。

物件詳細情報

物件用途 居住用 土地面積 -
間取り詳細 LDK0畳、和0畳、和0畳、洋0畳 土地権利 所有権
部屋の向き - 地目 その他
専有面積基準 壁芯 都市計画 -
施工会社 - 用途地域 第一種住居地域
現況 居住中 国土法届出 不要
引渡時期 相談 取引態様 一般
設備その他 -
特記事項 -
備考 -
情報更新日 2026/01/27 広告有効期限 2026/02/27
電話でお問い合わせ
ヤマダ不動産 加古川本店 店舗情報
[所在地] 兵庫県加古川市平岡町一色100-1 Tecc LIFE SELECT 加古川本店 1階
[営業時間] 10:00~19:00
Tel079-457-3355
お気軽にお問い合わせください。

このページをご覧の方に
おすすめの不動産物件